
Exkluzívne na predaj: Priestranný 6-izbový dom v Malých Levároch – Ideálny pre rodinu, dvojgeneračné bývanie alebo aj ako investícia!
Ponúkame na predaj priestranný, zateplený rodinný dom v tichej lokalite obce Malé Leváre na Záhorí. Vďaka svojej veľkorysej dispozícii a možnosti jednoduchého rozdelenia na dve samostatné bytové jednotky je táto nehnuteľnosť ideálna nielen pre viacčlennú rodinu, ale predstavuje aj vynikajúcu investičnú príležitosť so stabilným výnosom z prenájmu.
Dom stojí na pozemku s výmerou 639 m² a poskytuje úžitkovú plochu až 260 m². Jeho poloha je strategická – ponúka pokojné vidiecke bývanie s rýchlou dostupnosťou do Malaciek (10 km), Bratislavy (46 km) .
Kľúčové parametre a výhody:
Lokalita: Malé Leváre, okres Malacky
Pozemok: 639 m²
Obytná plocha: 260 m²
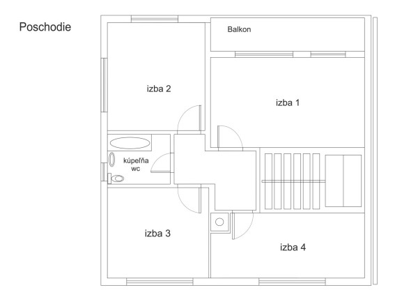
Počet izieb: 6 (priestranné a svetlé)
Dispozícia: 2x kúpeľňa, 2x WC, 1x kuchyňa, technická miestnosť, balkón
Flexibilita: Dom je možné využívať ako jednu veľkú bytovú jednotku alebo jednoducho upraviť na dva samostatné byty, čo maximalizuje jeho investičný potenciál.
Stav: Zateplený, plastové okná s izolačným dvojsklom, rovná strecha
Technické špecifikácie:
Inžinierske siete: Elektrina (230/400V), plyn, kanalizácia, internet.
Voda: Vlastná vŕtaná studňa (20 m). Obecný vodovod je vo fáze budovania.
Kúrenie: Ústredné, s možnosťou vykurovania plynom aj tuhým palivom – nízke prevádzkové náklady.
Garáž: Áno
Tento dom je skvelou voľbou pre tých, ktorí hľadajú komfortné rodinné bývanie, ako aj pre investorov hľadajúcich nehnuteľnosť s vysokým potenciálom prenájmu v strategicky výhodnej lokalite.
Lokalita, ktorá ponúka viac než len bývanie:
Obklopujúca príroda Záhoria je najväčším benefitom tejto lokality. Len pár minút od domu sa nachádza obľúbená rekreačná oblasť Rudava, ktorá v lete ponúka dobré podmienky na kúpanie, rybolov a vodné športy. Okolité borovicové lesy sú rajom pre hubárov a milovníkov prechádzok. Navyše, priamo cez obec vedú medzinárodné cyklotrasy, ktoré vás pohodlne zavedú do Rakúska, Česka alebo pozdĺž rieky Moravy až do Bratislavy. Ideálne miesto pre milovníkov aktívneho oddychu a rodiny s deťmi.
Pre viac informácií alebo dohodnutie si osobnej obhliadky ma neváhajte kontaktovať.
Obec: | Malé Leváre |
---|---|
Okres: | Malacky |
Kraj: | Bratislavský kraj |
Druh: | Domy |
Typ: | Predaj |
Typ domu: | Rodinný dom |