
Realitná kancelária UPgreat ponúka na prenájom nehnuteľnosť - priestor pre ambulanciu lekára/služby zdravotníckeho charakteru v centre Piešťan.
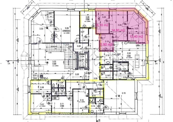
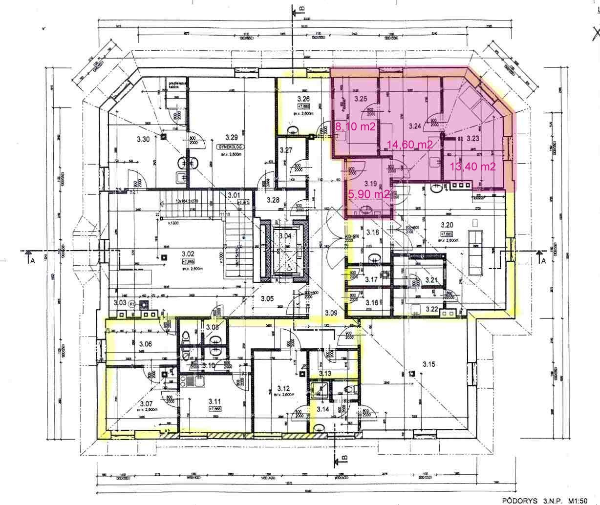
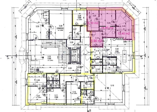
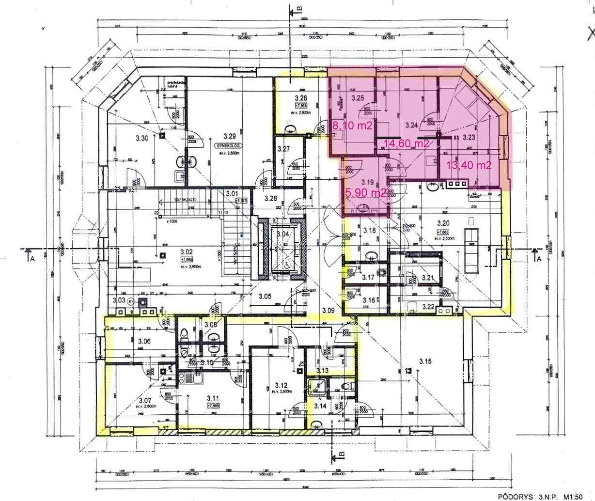
Ponúkané priestory sa nachádzajú na druhom poschodí budovy. Pôvodne slúžili ako časť centra asistovanej reprodukcie. Jedná sa o 3 miestnosti. Celková rozloha je 36,10 m2 + vstupná chodba o rozolohe 5,90 m2.
PRIESTORY:
MESAČNÉ POPLATKY (bez DPH):
Priestory je možné využiť na ich pôvodný účel, alebo ako odbornú ambulanciu lekára, popr. ako priestor pre služby zdravotníckeho charakteru. Voľný od: 01.12.2025
Budova - Vila Alexander sa nachádza na ulici Winterova. Je situovaná na kraji parku oproti Kolonádovému mostu. Objekt v pamiatkovej zóne bol zapísaný v zozname pamätihodností mesta Piešťany v roku 2009. Pôvodne bola vila využívaná ako penzión s kumulovanou prevádzkou liečebného a ubytovacieho charakteru s bývaním majiteľa (praktikujúci lekár – Dr. Alexander). V roku 2007-2008 bola rekonštruovaná pre účely zdravotníckych zariadení – ambulancií lekárov a lekárne.
V celej budove sú urobené rozvody štruktúrovanej kabeláže, nainštalovaný zabezpečovací systém, výťah, drevené okná s exteriérovými žalúziami. V priestoroch budovy sa nachádzajú hlavne ambulancie súkromných odborných lekárov. Avšak voľné priestory je možné využiť aj ako kancelárie alebo sídlo spoločnosti. V prípade voľnej kapacity je možnosť parkovania pri budove, za rampou. Pri vstupe do budovy pre imobilných slúži ku vstupu plošina.
ℹ️ Dôležité informácie pre záujemcov:
✔ Nehnuteľnosť bude voľná a k dispozícii od 01.12.2025, na obhliadku po dohode s maklérkou
✔ Ponuka je aktuálna – v prípade rezervácie alebo prenájmu vždy zmeníme status
Ulica: | Winterova |
---|---|
Mestská časť: | Centrum |
Obec: | Piešťany |
Okres: | Piešťany |
Kraj: | Trnavský kraj |
Druh: | Priestory |
Typ: | Prenájom |
Typ objektu: | Kancelárske priestory |
Iné: |