
Ponúkame na predaj prízemný 4-izbový rodinný dom nachádzajúci sa v tichej časti obce Čečínska Potôň, okres Dunajská Streda. Dom je ideálnou voľbou pre rodiny s deťmi, ale aj pre tých, ktorí hľadajú pokojné bývanie mimo rušného mesta, s rýchlym prístupom do Dunajskej Stredy aj Bratislavy.
Základné informácie o nehnuteľnosti:
Typ stavby: murovaný, nepodpivničený rodinný dom
Počet izieb: 4
Zastavaná plocha: 155 m²
Úžitková plocha: 104,94 m²
Typ strechy: valbová
Vstup: z bočnej strany
Terasa: krytá, orientovaná do dvora
Stav: novostavba, ihneď obývateľný
Inžinierske siete a technické informácie:
Voda: vlastná studňa
Kanalizácia: napojenie na verejnú kanalizáciu
Elektrina: napojenie na NN vedenie
Kúrenie: elektrické podlahové
Parkovanie: spevnená odstavná plocha priamo na pozemku
Prístupová cesta: betónová komunikácia
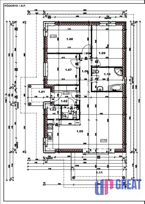
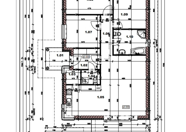
Dispozícia:
Dispozičné riešenie domu ponúka komfortné a praktické bývanie:
priestranná obývacia izba prepojená s jedálňou
kuchyňa s výhľadom na dvor
tri samostatné spálne
kúpeľňa s WC
vstupná chodba
technická miestnosť
prístup na krytú terasu vhodnú na oddych či posedenie s rodinou
Lokalita a občianska vybavenosť:
Rodinný dom sa nachádza v pokojnej časti obce Čečínska Potôň, ktorá patrí pod obec Horná Potôň.
V obci sa nachádza:
materská a základná škola (s vyučovacím jazykom maďarským)
pošta
potraviny, obchodné prevádzky
praktický a detský lekár (v blízkom okolí), lekáreň
kultúrny dom, kostol
obecný úrad
veterinárna ambulancia
zberný dvor a služby pre domácnosť
možnosť športového rybolovu v obci Michal na Ostrove cca 5km
Výborná dostupnosť do Dunajskej Stredy (cca 15 minút autom) možnosť využitia termálneho kúpaliska a Bratislavy (cca 45 minút).Prístup autom je bezproblémový aj v zime vďaka betónovej prístupovej ceste.
Výhody nehnuteľnosti:
výborná dispozícia – 4 izby + terasa
súkromie a pokojné prostredie
vlastná studňa = nízke náklady na vodu
napojenie na verejnú kanalizáciu
parkovanie pre viacero áut na pozemku
ideálne pre rodinné bývanie alebo ako víkendová chalupa
V prípade záujmu o obhliadku alebo viac informácií ma neváhajte kontaktovať.
Ráda vám dom osobne predstavím a zodpoviem všetky otázky.
Cena: 336.000 € štandard
Cena holodomu je nižšia na základe dohody.
Mestská časť: | Čečínska Potôň |
---|---|
Obec: | Horná Potôň |
Okres: | Dunajská Streda |
Kraj: | Trnavský kraj |
Druh: | Domy |
Typ: | Predaj |
Typ domu: | Rodinný dom |