
NÁZOR MAKLÉRKY NA NEHNUTEĽNOSŤ:
Ak by som uvažovala nad bývaním a podnikaním v gastronómii, všetko na jednom mieste, vybrala by som si práve túto ponuku. Prečo?
- výborná lokalita - budova je umiestnená na strategickom mieste, v tesnej blízkosti hranice s ČR. Po tejto trase denne prejde niekoľko sto vozidiel;
- možnosť ubytovania - trvalé bývanie nového majiteľa. Bývate a podnikáte vo svojom! Na druhej strane, v podkroví je dostatok miesta na to, aby sa dali vytvoriť kapacity na ubytovanie hostí;
- potenciál - okrem dennej ponuky pre "okoloidúcich", možnosť usporadúvať aj firemné/rodinné akcie do kapacity cca 40-45 ľudí;
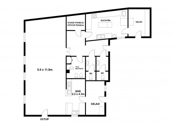
- vybavenie - dom je dispozične a právne vedený ako reštaurácia, je plne vybavená a bola kolaudovaná v r. 2017 (realizovaná prístavba a nadstavba). Navyše na pozemku sa nachádza ďalšia samostatná budova so soc.zázemím, ktorú je možné využiť či už na kanceláriu, alebo predaj "cez okienko" okoloidúcim. Menšími úpravami je možné zmeniť na trvalé bývanie.
ZÁKLADNÉ ÚDAJE:
DISPOZÍCIA:
TECHNICKÁ CHARAKTERISTIKA NEHNUTEĽNOSTI:
POZEMOK:
INŽINIERSKE SIETE:
NÁKLADY na prevádzku - elektrika cca 200,- €/mesiac
POPIS OKOLIA: - budova sa nachádza pri hlavnom ťahu na hraničný priechod s Českou republikou, len cca 300 m od priechodu.
ℹ️ Dôležité informácie pre záujemcov:
✔ Nehnuteľnosť je voľná a k dispozícii na obhliadku po dohode s maklérkou
✔ Ponuka je aktuálna – v prípade rezervácie alebo predaja vždy zmeníme status
✔ V prípade záujmu o financovanie Vám radi pôžeme s výhodnou hypotékou prostredníctvom UPgreat Hypotéky
Ulica: | Šance |
---|---|
Obec: | Moravské Lieskové |
Okres: | Nové Mesto nad Váhom |
Kraj: | Trenčiansky kraj |
Druh: | Domy |
Typ: | Predaj |
Typ domu: | Rodinný dom |
Iné: |