
Realitná kancelária UPgreat ponúka na prenájom nehnuteľnosť - priestor pre ambulanciu lekára / služby zdravotníckeho charakteru v centre Piešťan.
Ponúkaný priestor sa nachádza na druhom poschodí budovy. Pôvodne slúžil ako časť centra asistovanej reprodukcie, následne bol zrekonštruovaný ako priestor pre biopedikúru - ichtioterapiu (fotografie zo stavu, keď bola prevádzka funkčná. Priestor sa prenajíma nezariadený).
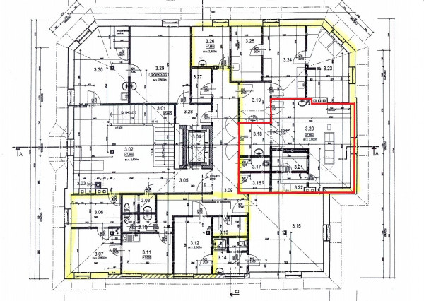
V rámci rekonštrukcie priestorov bol vytvorený samostatný "služobný vchod" a WC priamo v priestore.
Priestor sa skladá z 5 miestností. Celková rozloha je 44,10 m2.
MESAČNÉ POPLATKY (bez DPH):
Celková suma prenájmu vrátane energií a správy bez DPH je vo výške 442,55 €/mesiac.
Priestory je možné využiť na ich pôvodný účel, alebo ako odbornú ambulanciu lekára, popr. ako priestor pre služby zdravotníckeho charakteru. Priestor nie je zariadený.
Budova - Vila Alexander sa nachádza na ulici Winterova. Je situovaná na kraji parku oproti Kolonádovému mostu. Objekt v pamiatkovej zóne bol zapísaný v zozname pamätihodností mesta Piešťany v roku 2009. Pôvodne bola vila využívaná ako penzión s kumulovanou prevádzkou liečebného a ubytovacieho charakteru s bývaním majiteľa (praktikujúci lekár – Dr. Alexander). V roku 2007-2008 bola rekonštruovaná pre účely zdravotníckych zariadení – ambulancií lekárov a lekárne.
V celej budove sú urobené rozvody štruktúrovanej kabeláže, nainštalovaný zabezpečovací systém, výťah, drevené okná s exteriérovými žalúziami. V priestoroch budovy sa nachádzajú hlavne ambulancie súkromných odborných lekárov. Avšak voľné priestory je možné využiť aj ako kancelárie alebo sídlo spoločnosti. V prípade voľnej kapacity je možnosť parkovania pri budove, za rampou. Pri vstupe do budovy pre imobilných slúži ku vstupu plošina.
ℹ️ Dôležité informácie pre záujemcov:
✔ Nehnuteľnosť je voľná a k dispozícii na obhliadku po dohode s maklérkou
✔ Ponuka je aktuálna – v prípade rezervácie alebo prenájmu vždy zmeníme status
Ulica: | Winterova |
---|---|
Mestská časť: | Centrum |
Obec: | Piešťany |
Okres: | Piešťany |
Kraj: | Trnavský kraj |
Druh: | Objekty |
Typ: | Prenájom |
Typ objektu: | Komerčný objekt |
Iné: |